Westbourne Terrace, Selby

For Sale
Asking Price £170,000 (Freehold)

3 1 2

Summary

Three Bedroom Mid-Terrace | Over Three Floors | No Onward Chain | Two Reception Rooms | Low Maintenance Rear Yard | Street Parking | Ideal For First Time Buyers or Investment | Close To Town Location | Viewing Highly Recommended

Jigsaw Move are pleased to present this delightful mid-terrace house across three floors nestled in the charming area of Westbourne Terrace, Selby. The property offers a perfect blend of comfort and convenience. Spanning an impressive 877 square feet, the property boasts two inviting reception rooms, ideal for both relaxation and entertaining.

Upon entering through the elegant sliding doors, you are welcomed into a generous lounge that flows seamlessly into a spacious dining room, creating an open and airy atmosphere. The well-appointed kitchen, which opens onto a quaint rear yard, is perfect for enjoying al fresco dining or simply soaking up the sun.

The first floor features a large double bedroom, providing a peaceful retreat, alongside a family bathroom that caters to all your needs. Ascend to the second floor, where you will find two additional double bedrooms, each offering ample space and natural light, making them perfect for family members or guests.

The property is further enhanced by a long front garden, complete with a shed for additional storage, and a rear yard that offers a low-maintenance rear yard, ideal for sitting out in the sun with a coffee on those warm summer mornings!

With no onward chain, this home is ready for you to move in and make it your own. Street parking is available, adding to the convenience of this lovely residence. This property is an excellent opportunity for families or individuals seeking a comfortable home in a desirable location.

The property is situated within walking distance to Selby Town Centre. Selby hosts a range of local amenities including a buzzing high street with; shops, doctors, opticians, beauty parlours, super markets, restaurants and is also home to the historical Selby Abbey. With its close proximity to all major networks, Selby is ideal when commuting to York, Leeds and Hull.

Don't miss out on the chance to make this house your own and enjoy the comfort and convenience it has to offer. Contact us today to arrange a viewing and take the first step towards owning this wonderful property in Selby!

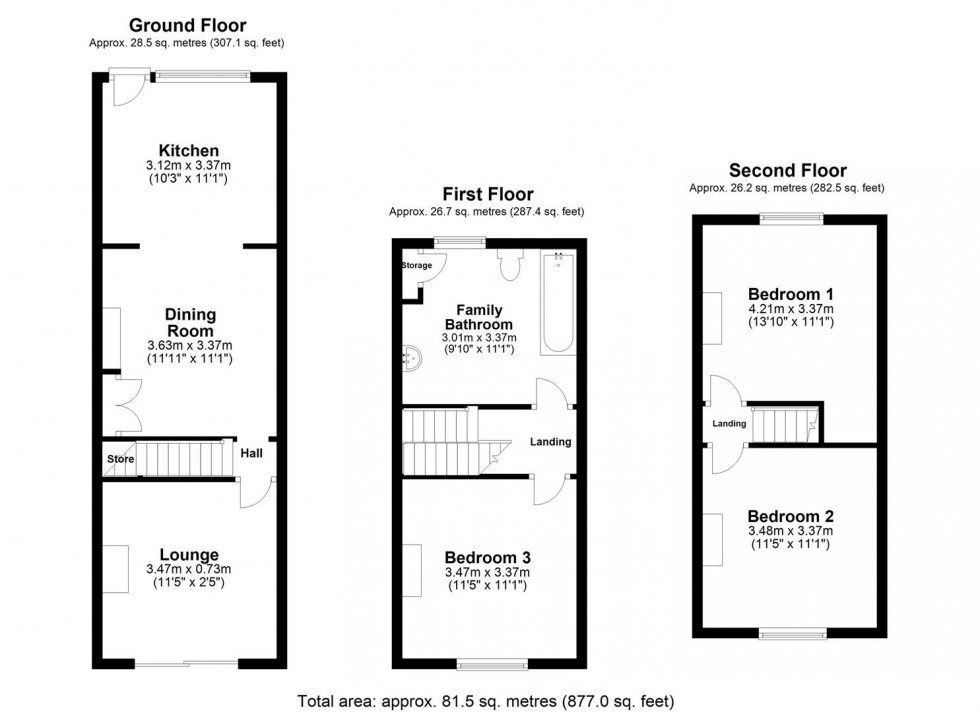
GROUND FLOOR ACCOMMODATION

Lounge (3.47m x 0.73m)

Hall

Dining Room (3.63m x 3.37m)

Kitchen (3.12m x 3.37m)

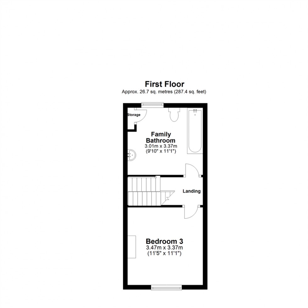
FIRST FLOOR ACCOMMODATION

Landing

Bedroom Three (3.47m x 3.37m)

Family Bathroom (3.01m x 3.37m)

SECOND FLOOR ACCOMMODATION

Landing

Bedroom One (4.21m x 3.37m)

Bedroom Two (3.48m x 3.37m)

ANTI-MONEY LAUNDERING (AML) CHECKS

In line with AML regulations, we use Thirdfort to complete ID verification checks for all buyers. A fee is associated with this service.

For further information, please contact our branch:
01757 241123
info@jigsawmove.co.uk

COUNCIL TAX

Please note that the council tax band for the property has either been advised by the owner or we have sought from online resources. Whilst we endeavour to ensure our details are accurate and reliable, we strongly advise to make further enquiries before continuing.

HEATING AND APPLIANCES

The heating system and any appliances (including Burglar Alarms where fitted) mentioned in this brochure have not been tested by Jigsaw. The mention of any appliances and/or services within these particulars does not imply that they are in full and efficient working order.

MAKING AN OFFER

In order to comply with the Estate Agents (Undesirable Practises) Order 1991, Jigsaw Move is required to verify the status of any prospective purchaser. This includes a financial standing of that purchaser and their ability to exchange contracts. To allow us to comply with this order and before recommending acceptance of any offers, and subsequently making the property ‘SOLD stc’ each prospective purchaser will be required to demonstrate to ‘Jigsaw Move’ that they are financially able to proceed with the purchase of the property.

MEASUREMENTS

These approximate room sizes are only intended as general guidance. You must verify the dimensions carefully before ordering carpets or any built in furniture.
All measurements have been taken using a laser distance metre or sonic tape measure and therefore may be subject to a small margin of error.

OPENING HOURS

Monday – Friday 9.00am to 5.00pm Saturday – 9.00am – 1.00pm

PROPERTY DETAILS

Whilst we endeavour to make our property details are accurate and reliable, if there is any point which is of particular importance to you, please contact us and we will be pleased to check the information. Do so particularly if contemplating travelling some distance. These particulars are issued in good faith but do not constitute representations of fact or form part of any offer or contract. The matters referred to in these particulars should be independently verified by prospective buyers. Neither Jigsaw nor any of its employees or agents has any authority to make or give any representation or warranty whatsoever in relation to this property. In the area of Yorkshire and The Humber flood plains have been identified and coal mining has been carried out in the past in specific areas, therefore, we strongly advise that any prospective purchaser instructs an appropriate qualified person for the purposes of conveyancing to carry out searches on the property which include a local search with the Local Authority, a water and drainage search, an environmental search and a Chancel Repair Liability search. We also advise in certain cases other searches may be required such as a Coal Mining Search, Commons Registration Search which relates to Common Land, a Flood Search or a Planning Search. We would recommend that all the information that Jigsaw provide regarding this advertised property is verified by you or your legal representative. We do not inspect deeds and therefore any references or covenants etc need to be confirmed.

VIEWINGS

Strictly by appointment with the sole agents by contacting 01757 241123. If there is any point of particular importance to, that we will be pleased to provide additional information or to make any further enquiries. We will also confirm that the property remains available. This is particularly important if you are travelling some distance to view the property. A full copy of the EPC for the property is available upon request.

WINDOWS

Compliance with FENSA Building Regulations has not been sought by Jigsaw Move.

  • Council Tax Band: B
  • Mid-Terrace Property Over Three Storeys
  • Three Double Bedrooms
  • On Street Parking
  • Gas Central Heating
  • Freehold Property
  • EPC Rating - TBC
  • Council Tax Band - B
  • No Onward Chain
  • Multiple Reception Rooms
  • Ideal Location As Within Walking Distance To Town Centre
Floorplan for Westbourne Terrace, Selby Floorplan for Westbourne Terrace, Selby Floorplan for Westbourne Terrace, Selby Floorplan for Westbourne Terrace, Selby
EPC Graph for Westbourne Terrace, Selby

Request a FREE property valuation

Find out how much your property is worth