Sales
- What We Offer
- Property Auctions
- 10 Step Guide to Selling
- Guide to Buying
- Jargon Buster
- View Shortlist
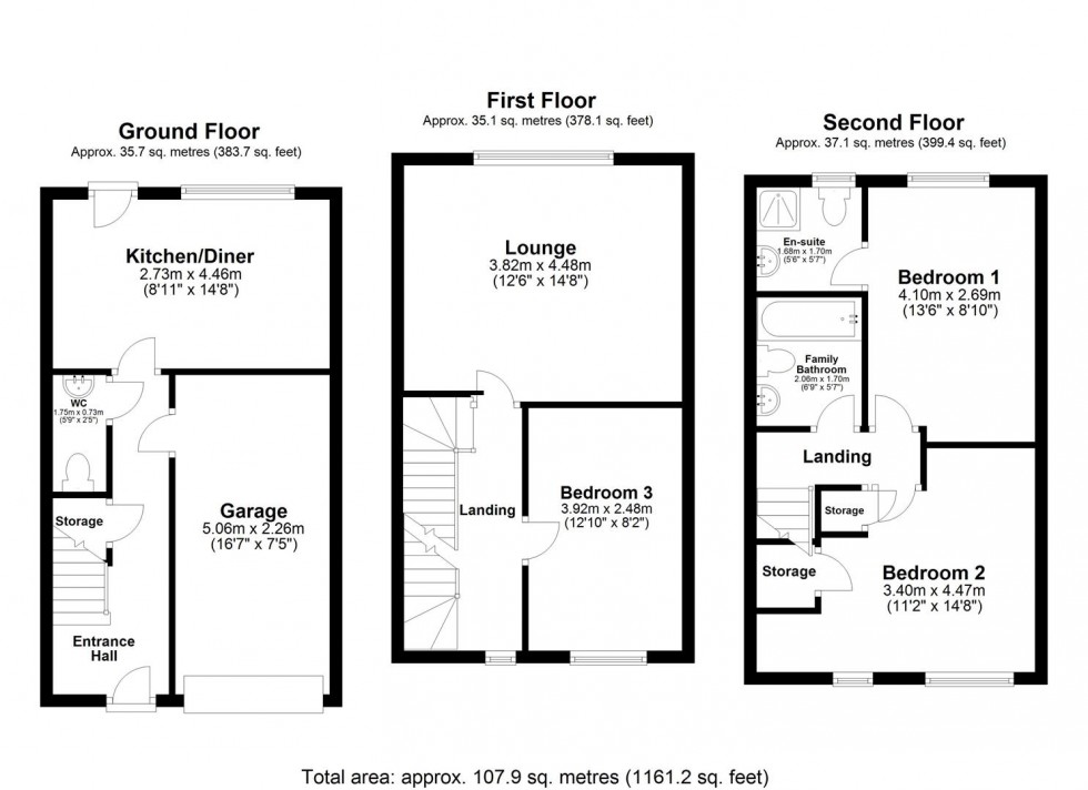
Jigsaw Move are pleased to welcome you to this charming three-storey end terrace house located in the desirable area of Abbots Court, Selby. This delightful property boasts a spacious layout, perfect for families or those seeking a comfortable living space.
Upon entering, you are greeted by a welcoming hallway that leads to a convenient ground floor WC. The heart of the home is undoubtedly the large kitchen diner, which features patio doors that open into the rear garden, allowing for a seamless flow between indoor and outdoor living. This space is ideal for entertaining guests or enjoying family meals.
The first floor offers a generous lounge, perfect for relaxation, along with a well-proportioned third bedroom. Ascend to the second floor, where you will find the master bedroom complete with an en-suite shower room, providing a private retreat. Additionally, there is a second bedroom with ample storage and a family bathroom, ensuring that all your needs are met.
Outside, the rear garden features a lovely patio area complemented by low-maintenance astro turf, creating a perfect space for outdoor gatherings or quiet moments in the sun. The property also benefits from driveway parking for you vehicle and an integral garage, providing convenience and security.
The property is situated within the desirable development of Staynor Hall which is popular among families with due to its close proximity to local amenities, primary school and walking distance to Selby Town Centre. Staynor Hall is also an ideal location for commuters due to its access links to all major networks making it perfect for those travelling to York, Leeds and Hull.
One of the standout features of this home is the absence of an onward chain, allowing for a smooth and hassle-free purchase process. This end terrace house is an excellent opportunity for those looking for a modern and spacious home in a sought-after location. Don’t miss your chance to make this property your own.
In line with AML regulations, we use Thirdfort to complete ID verification checks for all buyers. A fee is associated with this service.
For further information, please contact our branch:
01757 241123
info@jigsawmove.co.uk
Please note that the council tax band for the property has either been advised by the owner or we have sought from online resources. Whilst we endeavour to ensure our details are accurate and reliable, we strongly advise to make further enquiries before continuing.
The heating system and any appliances (including Burglar Alarms where fitted) mentioned in this brochure have not been tested by Jigsaw. The mention of any appliances and/or services within these particulars does not imply that they are in full and efficient working order.
In order to comply with the Estate Agents (Undesirable Practises) Order 1991, Jigsaw Move is required to verify the status of any prospective purchaser. This includes a financial standing of that purchaser and their ability to exchange contracts. To allow us to comply with this order and before recommending acceptance of any offers, and subsequently making the property ‘SOLD stc’ each prospective purchaser will be required to demonstrate to ‘Jigsaw Move’ that they are financially able to proceed with the purchase of the property.
These approximate room sizes are only intended as general guidance. You must verify the dimensions carefully before ordering carpets or any built in furniture.
All measurements have been taken using a laser distance metre or sonic tape measure and therefore may be subject to a small margin of error.
Monday – Friday 9.00am to 5.00pm Saturday – 9.00am – 1.00pm
Whilst we endeavour to make our property details are accurate and reliable, if there is any point which is of particular importance to you, please contact us and we will be pleased to check the information. Do so particularly if contemplating travelling some distance. These particulars are issued in good faith but do not constitute representations of fact or form part of any offer or contract. The matters referred to in these particulars should be independently verified by prospective buyers. Neither Jigsaw nor any of its employees or agents has any authority to make or give any representation or warranty whatsoever in relation to this property. In the area of Yorkshire and The Humber flood plains have been identified and coal mining has been carried out in the past in specific areas, therefore, we strongly advise that any prospective purchaser instructs an appropriate qualified person for the purposes of conveyancing to carry out searches on the property which include a local search with the Local Authority, a water and drainage search, an environmental search and a Chancel Repair Liability search. We also advise in certain cases other searches may be required such as a Coal Mining Search, Commons Registration Search which relates to Common Land, a Flood Search or a Planning Search. We would recommend that all the information that Jigsaw provide regarding this advertised property is verified by you or your legal representative. We do not inspect deeds and therefore any references or covenants etc need to be confirmed.
Strictly by appointment with the sole agents by contacting 01757 241123. If there is any point of particular importance to, that we will be pleased to provide additional information or to make any further enquiries. We will also confirm that the property remains available. This is particularly important if you are travelling some distance to view the property. A full copy of the EPC for the property is available upon request.
Compliance with FENSA Building Regulations has not been sought by Jigsaw Move.