Chestnut Green, Monk Fryston

For Sale
£275,000 (Freehold)

3 3 1

Summary

End Terrace Property | Three Bedrooms | No Onward Chain | Driveway Parking | Garage | Beautiful Views | Ideal Family Home | Popular Village Location

Jigsaw Move this delightful end-terrace house on Chestnut Green nestled in the charming village of Monk Fryston. The property offers a perfect blend of comfort and modern living. Spanning an impressive 907 square feet, the property features three well-proportioned bedrooms, making it an ideal home for families or those seeking extra space.

Upon entering, you are welcomed by a bright entrance hallway that leads to a large lounge, perfect for relaxation and entertaining. Also boasts a convenient WC, enhancing the practicality of the layout. The kitchen diner is a wonderful space for family meals, and the adjoining porch, with its double doors, opens seamlessly into a beautifully decked rear garden. This south-west facing garden, complete with a charming pagola, is an ideal spot for enjoying sunny afternoons and al fresco dining.

The first floor is home to a family bathroom alongside a master bedroom that is generously sized and benefits from an en-suite shower room, ensuring privacy and comfort. The second bedroom is also a generous double, while the third bedroom is a cosy single, making it ideal for families or those needing extra space for guests or a home office.

Additional features include driveway parking for up to two vehicles and a garage, providing ample storage and ease of access. The recent installation of new double-glazed windows in August 2025 enhances energy efficiency and comfort throughout the home.

The property is situated within the desirable village of Monk Fryston. This sought after village hosts a range of local amenities including; primary school, general shop, public house, restaurant and community centre. Monk Fryston is also an ideal location for commuters due to its access links to all major networks making it perfect for those travelling to York, Leeds and Hull.

With no onward chain, this property is ready for you to move in and make it your own. Whether you are a first-time buyer or looking to downsize, this home in Monk Fryston offers a wonderful opportunity to enjoy a peaceful village lifestyle while being conveniently located for local amenities and transport links. Don’t miss the chance to view this lovely home.

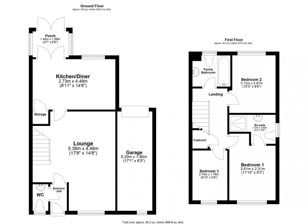
GROUND FLOOR ACCOMMODATION

Entrance Hall

Lounge (5.38m x 4.48m)

Kitchen/Diner (2.73m x 4.48m)

WC

Porch

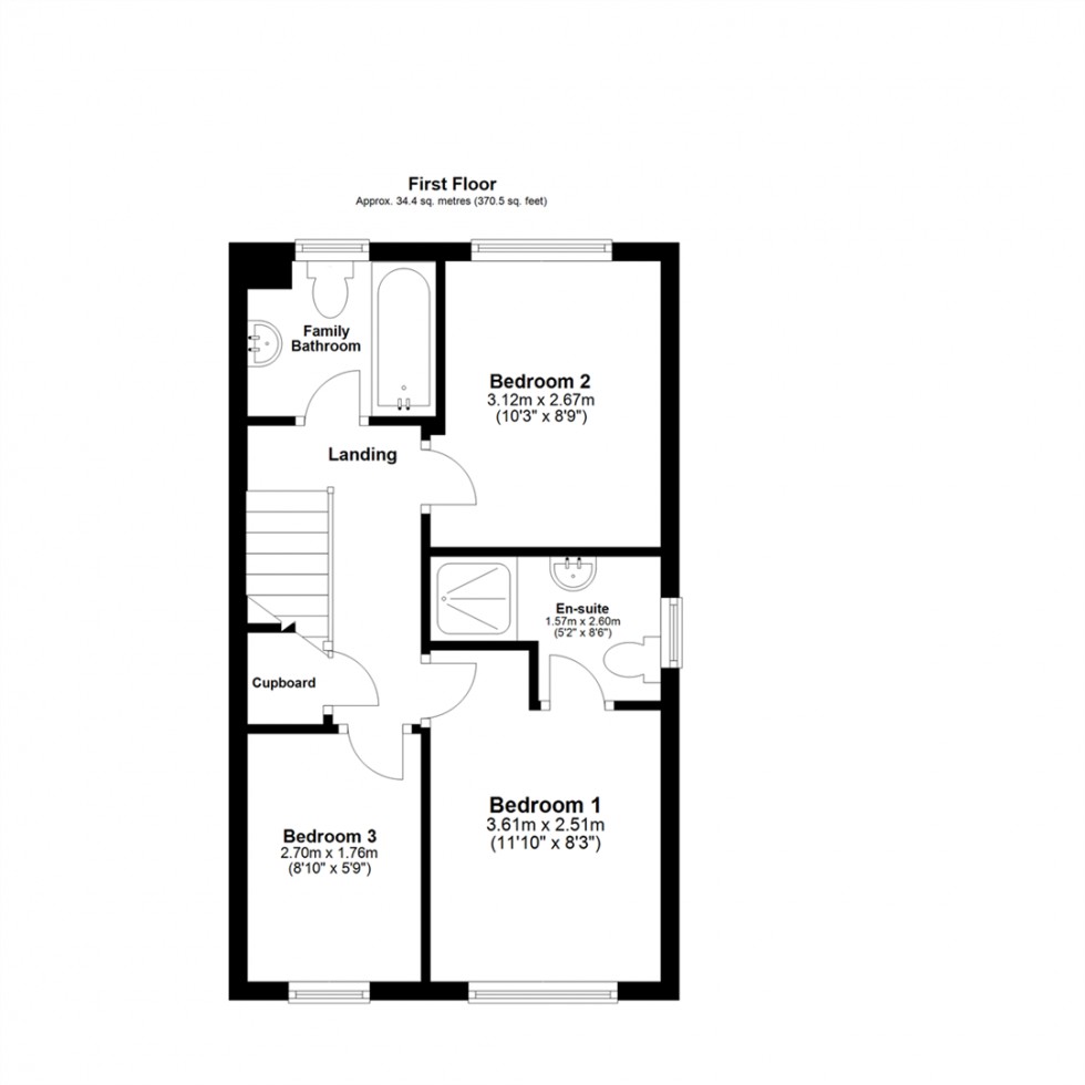
FIRST FLOOR ACCOMMODATION

Landing

Bedroom One (3.61m x 2.51m)

En-suite

Bedroom Two (3.12m x 2.67m)

Bedroom Three (2.70m x 1.76m)

Family Bathroom

EXTERNAL

Garage (5.20m x 1.90m)

ANTI-MONEY LAUNDERING (AML) CHECKS

In line with AML regulations, we use Thirdfort to complete ID verification checks for all buyers. A fee is associated with this service.

For further information, please contact our branch:
01757 241123
info@jigsawmove.co.uk

COUNCIL TAX

Please note that the council tax band for the property has either been advised by the owner or we have sought from online resources. Whilst we endeavour to ensure our details are accurate and reliable, we strongly advise to make further enquiries before continuing.

HEATING AND APPLIANCES

The heating system and any appliances (including Burglar Alarms where fitted) mentioned in this brochure have not been tested by Jigsaw. The mention of any appliances and/or services within these particulars does not imply that they are in full and efficient working order.

MAKING AN OFFER

In order to comply with the Estate Agents (Undesirable Practises) Order 1991, Jigsaw Move is required to verify the status of any prospective purchaser. This includes a financial standing of that purchaser and their ability to exchange contracts. To allow us to comply with this order and before recommending acceptance of any offers, and subsequently making the property ‘SOLD stc’ each prospective purchaser will be required to demonstrate to ‘Jigsaw Move’ that they are financially able to proceed with the purchase of the property.

MEASUREMENTS

These approximate room sizes are only intended as general guidance. You must verify the dimensions carefully before ordering carpets or any built in furniture.
All measurements have been taken using a laser distance metre or sonic tape measure and therefore may be subject to a small margin of error.

OPENING HOURS

Monday – Friday 9.00am to 5.00pm Saturday – 9.00am – 1.00pm

PROPERTY DETAILS

Whilst we endeavour to make our property details are accurate and reliable, if there is any point which is of particular importance to you, please contact us and we will be pleased to check the information. Do so particularly if contemplating travelling some distance. These particulars are issued in good faith but do not constitute representations of fact or form part of any offer or contract. The matters referred to in these particulars should be independently verified by prospective buyers. Neither Jigsaw nor any of its employees or agents has any authority to make or give any representation or warranty whatsoever in relation to this property. In the area of Yorkshire and The Humber flood plains have been identified and coal mining has been carried out in the past in specific areas, therefore, we strongly advise that any prospective purchaser instructs an appropriate qualified person for the purposes of conveyancing to carry out searches on the property which include a local search with the Local Authority, a water and drainage search, an environmental search and a Chancel Repair Liability search. We also advise in certain cases other searches may be required such as a Coal Mining Search, Commons Registration Search which relates to Common Land, a Flood Search or a Planning Search. We would recommend that all the information that Jigsaw provide regarding this advertised property is verified by you or your legal representative. We do not inspect deeds and therefore any references or covenants etc need to be confirmed.

VIEWINGS

Strictly by appointment with the sole agents by contacting 01757 241123. If there is any point of particular importance to, that we will be pleased to provide additional information or to make any further enquiries. We will also confirm that the property remains available. This is particularly important if you are travelling some distance to view the property. A full copy of the EPC for the property is available upon request.

WINDOWS

Compliance with FENSA Building Regulations has not been sought by Jigsaw Move.

  • Council Tax Band: D
  • End Terrace Property
  • Three Bedrooms
  • Driveway Parking & Garage
  • Gas Central Heating
  • Freehold Property
  • EPC Rating - C
  • Council Tax Band - D
  • No Onward Chain
  • Master Bedroom With En-Suite
  • Popular Village Location
Floorplan for Chestnut Green, Monk Fryston Floorplan for Chestnut Green, Monk Fryston Floorplan for Chestnut Green, Monk Fryston
EPC Graph for Chestnut Green, Monk Fryston

Request a FREE property valuation

Find out how much your property is worth