The Laurels, Barlby, Selby

For Sale
Asking Price £425,000 (Freehold)

6 4 2

Summary

Detached Property | Six Bedrooms | Driveway Parking | Garage | En-Suite To Two Bedrooms | Multiple Reception Rooms | Ideal Family Home | Popular Village Location | Viewing Highly Recommended

Jigsaw Move are pleased to welcome you to The Laurels, a splendid, detached house located in the desirable village of Barlby, Selby. This impressive property, built in 2007, offers a generous living space that is perfect for families seeking comfort and style. The Laurels is one of the few homes of its size in the estate, making it a sought-after choice for families looking for space and modern living.

As you enter the ground floor, you are greeted by a snug area, ideal for relaxation or informal gatherings. The kitchen diner is perfect for family meals and entertaining, while the separate spacious lounge, featuring patio doors, seamlessly connects to the rear garden, allowing for an abundance of natural light and easy access to outdoor living. A convenient WC is also located on this level.

Moving to the first floor, you will find four well-proportioned bedrooms, one of which boasts an en-suite shower room, providing a private retreat for its occupants. A family bathroom serves the other bedrooms, ensuring ample facilities for everyone.

Ascending to the top floor, you will find the master bedroom, complete with an en-suite shower, and an additional bedroom, both enhanced by Velux windows that flood the space with natural light.

This property also benefits from driveway parking for two vehicles and a garage, providing ample space for your vehicles and storage needs. The well-maintained rear garden offers a tranquil retreat, perfect for enjoying sunny days or hosting outdoor gatherings.

The property is situated within the desirable village of Barlby which hosts a range of local amenities a general grocery store, pharmacy, New Inn public house, a library, a late 19th Century Church, Barlby Community Primary School and Barlby High School. The development is minutes away from the A63 giving good road links to the A19, M62 and A1. Great regular bus service from Barlby to York & Selby and excellent rail links from Selby, York and Leeds.

In summary, this exceptional six-bedroom home is an ideal family residence with its spacious accommodation and modern amenities, this delightful home in Barlby is a rare find and is sure to appeal to those seeking a comfortable and stylish living environment. Do not miss the opportunity to make this remarkable property your new home.

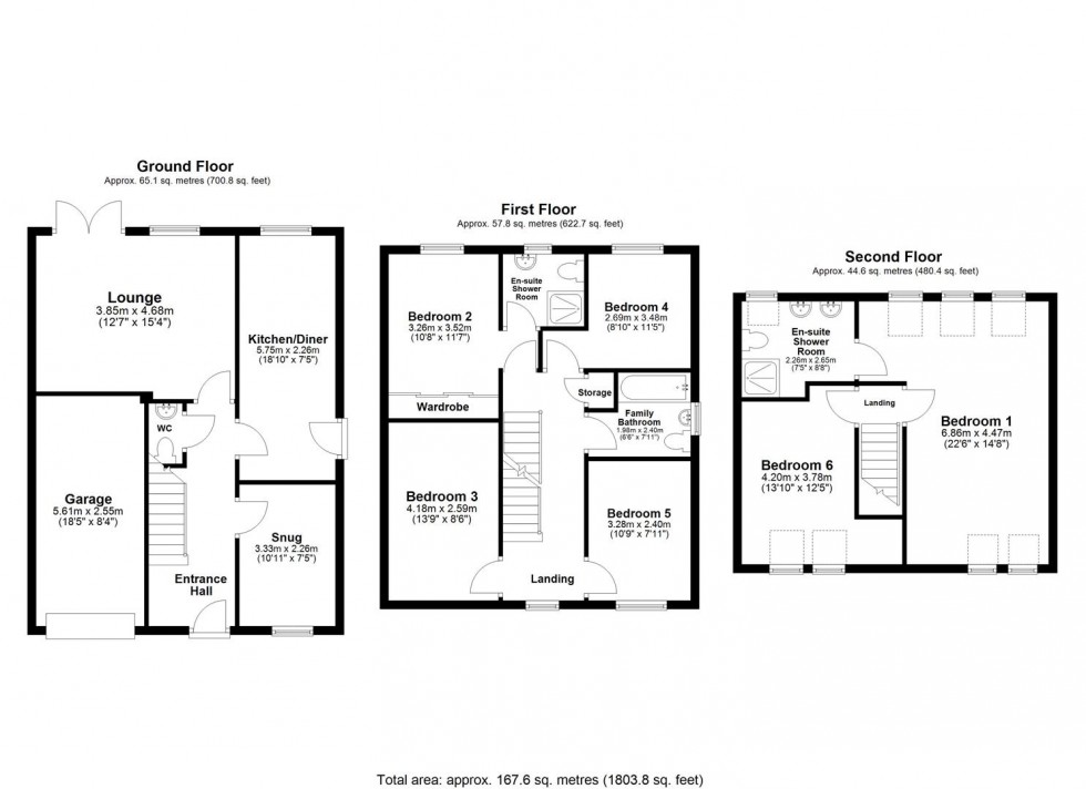
GROUND FLOOR ACCOMMODATION

Entrance Hall

Lounge (3.85m x 4.68m)

Kitchen (5.75m x 2.26m)

Snug (3.33m x 2.26m)

WC (1.42m x 0.79m)

FIRST FLOOR ACCOMMODATION

Landing

Bedroom Two (3.26m x 3.52m)

En-suite Shower Room (1.70m x 1.91m)

Bedroom Three (4.18m x 2.59m)

Bedroom Four (2.69m x 3.48m)

Bedroom Five (3.28m x 2.40m)

Family Bathroom (1.98m x 2.40m)

SECOND FLOOR ACCOMMODATION

Landing

Bedroom One (6.86m x 4.47m)

En-suite Shower Room (2.26m x 2.65m)

Bedroom Six (4.20m x 3.78m)

EXTERNAL

Garage (5.61m x 2.55m)

ANTI-MONEY LAUNDERING (AML) CHECKS

In line with AML regulations, we use Thirdfort to complete ID verification checks for all buyers. A fee is associated with this service.

For further information, please contact our branch:
01757 241123
info@jigsawmove.co.uk

COUNCIL TAX

Please note that the council tax band for the property has either been advised by the owner or we have sought from online resources. Whilst we endeavour to ensure our details are accurate and reliable, we strongly advise to make further enquiries before continuing.

HEATING AND APPLIANCES

The heating system and any appliances (including Burglar Alarms where fitted) mentioned in this brochure have not been tested by Jigsaw. The mention of any appliances and/or services within these particulars does not imply that they are in full and efficient working order.

MAKING AN OFFER

In order to comply with the Estate Agents (Undesirable Practises) Order 1991, Jigsaw Move is required to verify the status of any prospective purchaser. This includes a financial standing of that purchaser and their ability to exchange contracts. To allow us to comply with this order and before recommending acceptance of any offers, and subsequently making the property ‘SOLD stc’ each prospective purchaser will be required to demonstrate to ‘Jigsaw Move’ that they are financially able to proceed with the purchase of the property.

MEASUREMENTS

These approximate room sizes are only intended as general guidance. You must verify the dimensions carefully before ordering carpets or any built in furniture.
All measurements have been taken using a laser distance metre or sonic tape measure and therefore may be subject to a small margin of error.

OPENING HOURS

Monday – Friday 9.00am to 5.00pm Saturday – 9.00am – 1.00pm

PROPERTY DETAILS

Whilst we endeavour to make our property details are accurate and reliable, if there is any point which is of particular importance to you, please contact us and we will be pleased to check the information. Do so particularly if contemplating travelling some distance. These particulars are issued in good faith but do not constitute representations of fact or form part of any offer or contract. The matters referred to in these particulars should be independently verified by prospective buyers. Neither Jigsaw nor any of its employees or agents has any authority to make or give any representation or warranty whatsoever in relation to this property. In the area of Yorkshire and The Humber flood plains have been identified and coal mining has been carried out in the past in specific areas, therefore, we strongly advise that any prospective purchaser instructs an appropriate qualified person for the purposes of conveyancing to carry out searches on the property which include a local search with the Local Authority, a water and drainage search, an environmental search and a Chancel Repair Liability search. We also advise in certain cases other searches may be required such as a Coal Mining Search, Commons Registration Search which relates to Common Land, a Flood Search or a Planning Search. We would recommend that all the information that Jigsaw provide regarding this advertised property is verified by you or your legal representative. We do not inspect deeds and therefore any references or covenants etc need to be confirmed.

VIEWINGS

Strictly by appointment with the sole agents by contacting 01757 241123. If there is any point of particular importance to, that we will be pleased to provide additional information or to make any further enquiries. We will also confirm that the property remains available. This is particularly important if you are travelling some distance to view the property. A full copy of the EPC for the property is available upon request.

WINDOWS

Compliance with FENSA Building Regulations has not been sought by Jigsaw Move.

  • Council Tax Band: E
  • Detached Property
  • Six Bedrooms
  • Driveway Parking & Garage
  • Gas Central Heating
  • Freehold Property
  • EPC Rating - TBC
  • Council Tax Band - E
  • Ideal Family Home
  • En-Suites To Two Bedrooms
  • Multiple Reception Rooms
Floorplan for The Laurels, Barlby, Selby Floorplan for The Laurels, Barlby, Selby Floorplan for The Laurels, Barlby, Selby Floorplan for The Laurels, Barlby, Selby

Request a FREE property valuation

Find out how much your property is worth